2025-07-16 18:39:57
► Project time: 2021.4.20-2021.9.30
► Project scale: East Auxiliary Building 15,000㎡
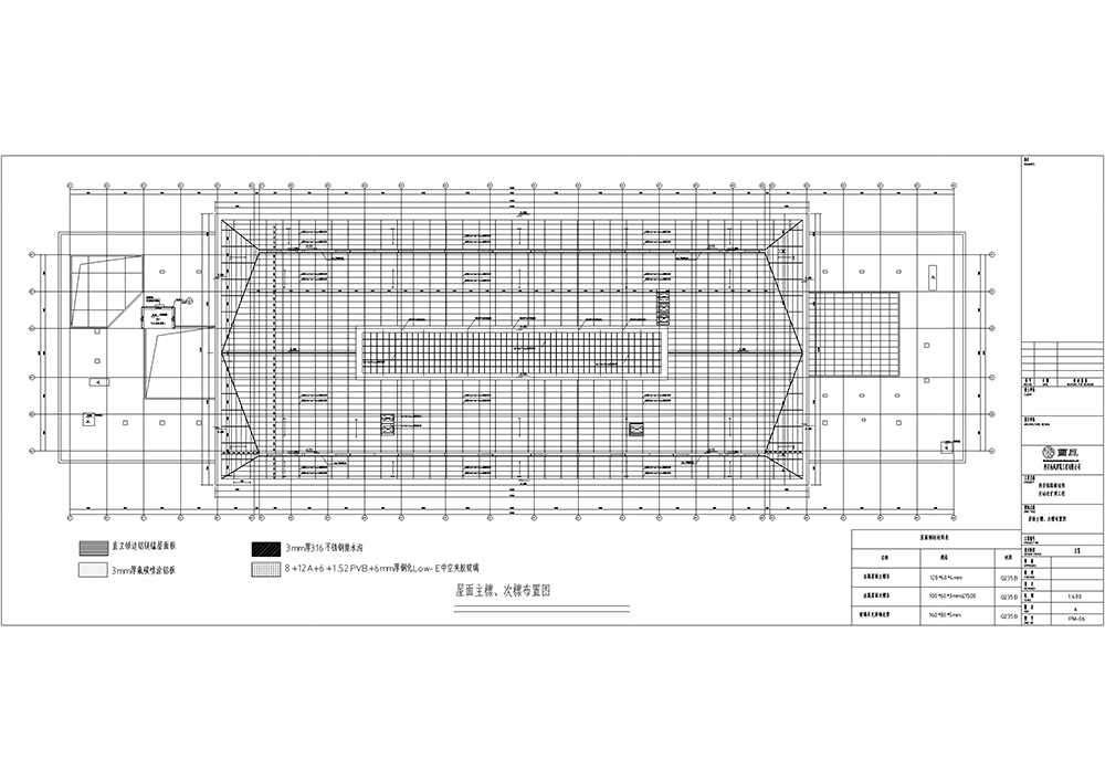
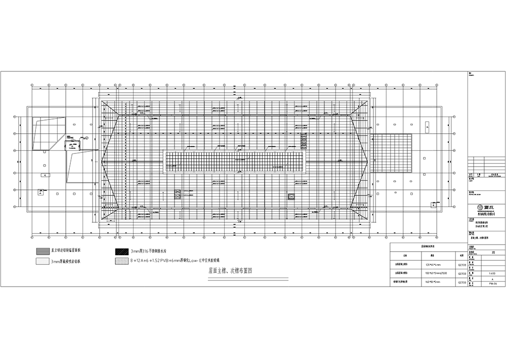
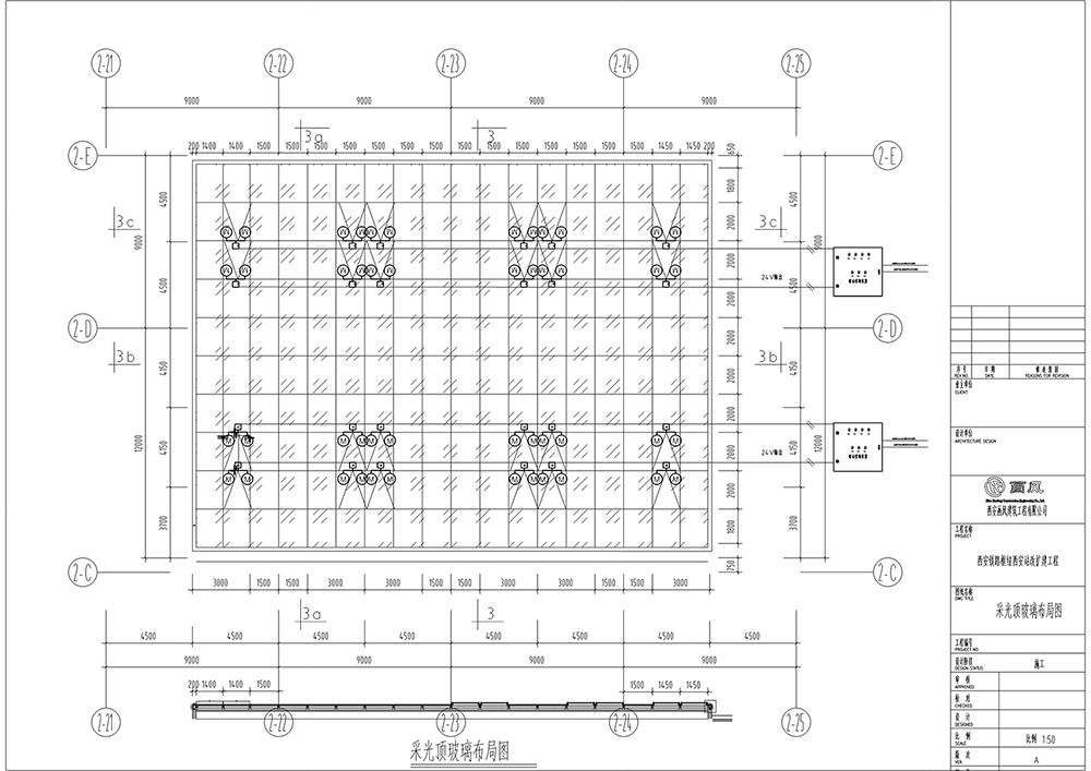
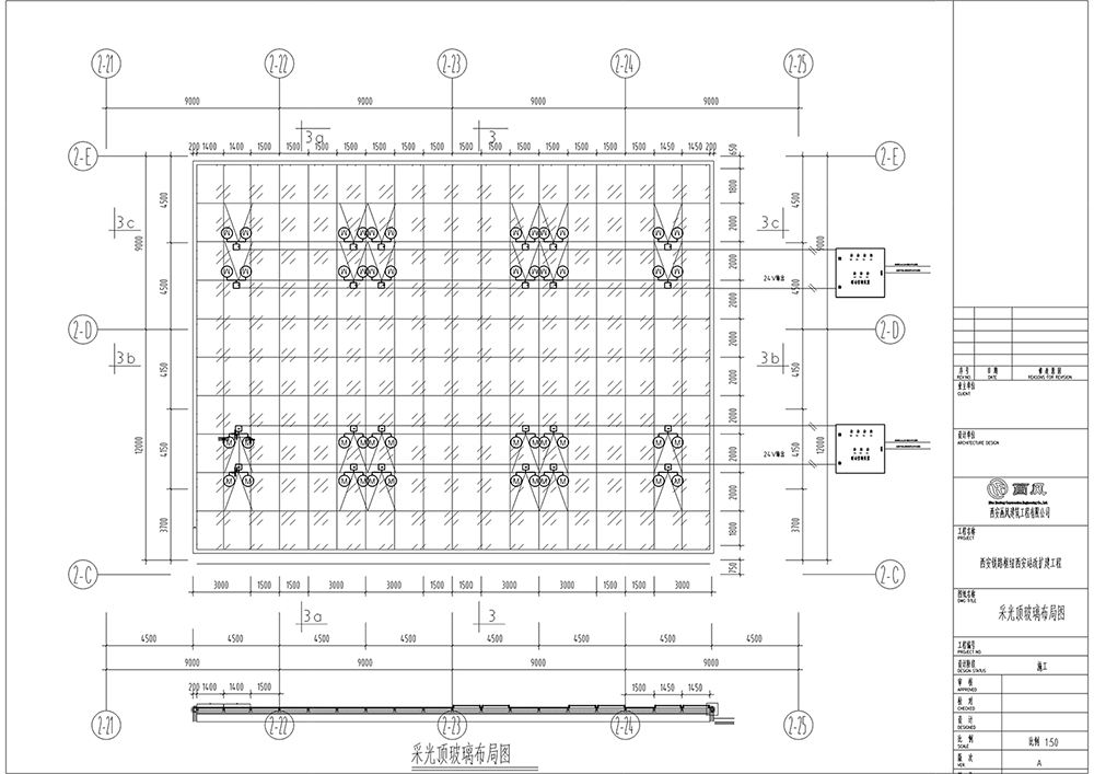
► Project features:
The metal roof is divided into high and low spans, consisting of glass skylights, electric smoke exhaust windows, and external eaves aluminum panels. The project is time-sensitive, and multiple work surfaces are replaced. In order to achieve the completion of the East Auxiliary Building and other supporting production and living facilities before the 14th National Games, our company completed 90% of the construction tasks of the steel structure purlins, metal roofs, stainless steel gutters, aluminum plates, and glass installation of the East Auxiliary Building in one and a half months.




