2025-07-17 10:02:38
Xi'an Huafeng Construction Engineering Co., Ltd. is proud to showcase one of our most recent projects, the Jinghe New Town International Culture and Arts Center South Building Section 2-2. This project exemplifies our unwavering commitment to excellence and our dedication to delivering top-notch construction solutions. As a reliable partner for all your metal roofing needs, we are excited to share how our best-in-class metal roofing systems have contributed to the success of this remarkable project.
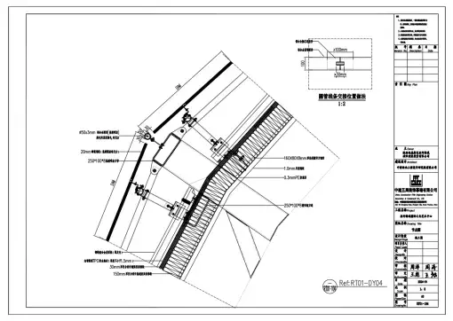
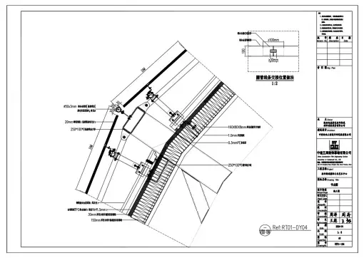
The cross-section adopts 1:3, the structural layer is a steel structure roof truss, and the sound-absorbing panel is made of 1.0mm thick 900-type profiled steel plate with a perforation rate of 23% to ensure durability and acoustic performance. The purlins are made of 180*70*20*3mm C-shaped steel, and the punching plate is made of 0.3mm PE moisture-proof layer. To provide an excellent thermal insulation effect, the insulation layer is made of 150mm thick rock wool + 30mm thick rock wool, and a 1.5 mm thick reinforced TPO waterproof membrane is laid on the insulation layer. This ensures that the building remains energy-saving and protected from bad weather.






The Jinghe New Town International Culture and Arts Center South Building Section 2-2 stands as a testament to the superior quality and performance of our metal roofing systems. By incorporating our innovative roofing solutions into this project, we have not only contributed to the overall durability and longevity of the building but also added a distinct aesthetic value to the structure.






If you're in search of a reliable partner for your metal roofing needs, look no further than Xi'an Huafeng Construction Engineering Co., Ltd. Our team is dedicated to delivering tailored roofing solutions that align with your specific requirements and exceed your expectations. Contact us today at huafeng@hfmetalroof.com to learn more about how our best-in-class metal roofing systems can elevate the quality and performance of your next project.