2025-07-16 17:38:29
► Project time: 2023
► Project area: 1200㎡
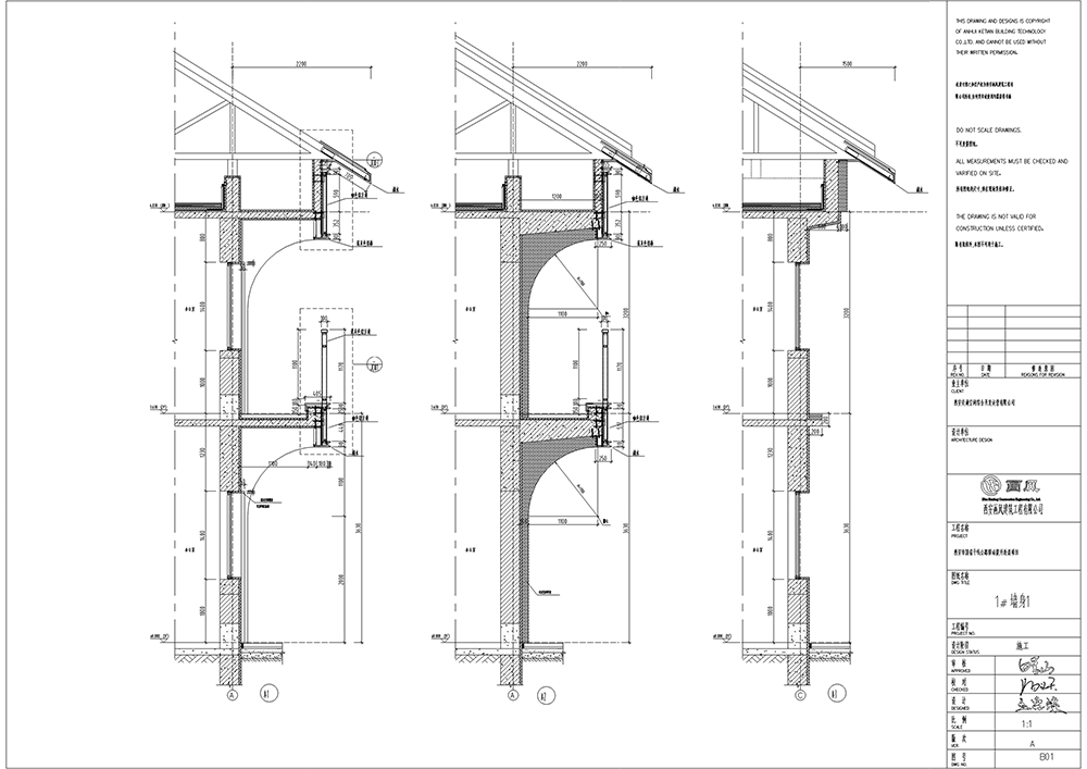
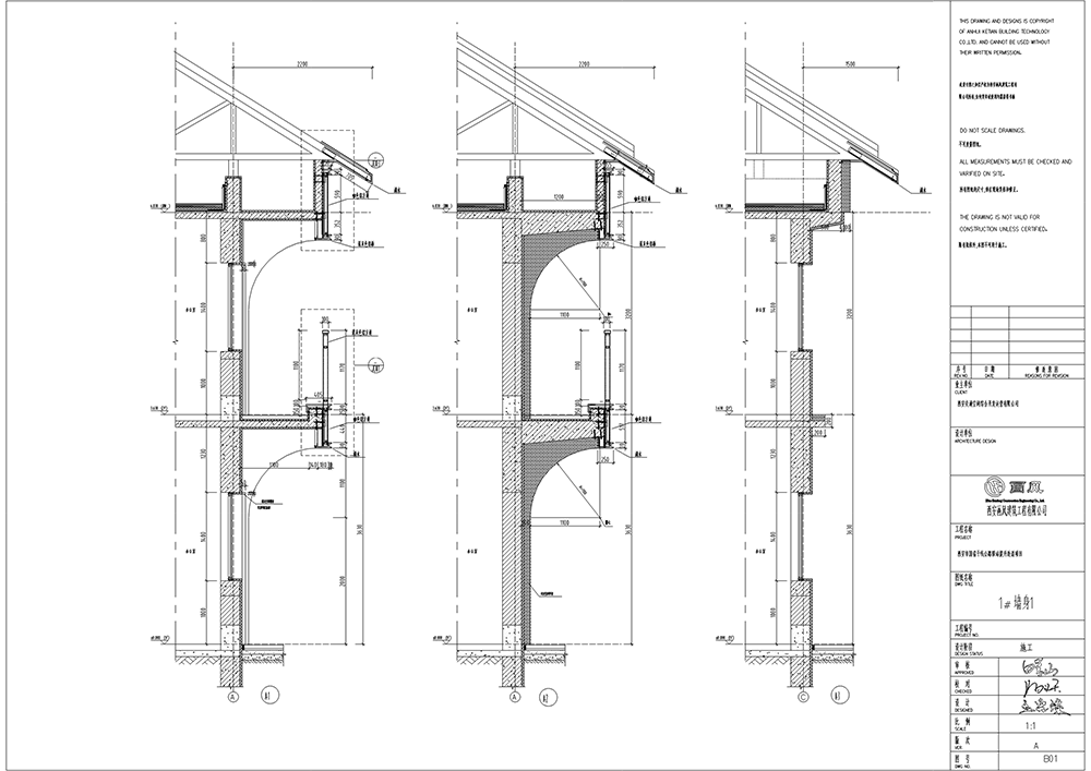
► Project introduction:
Our company is mainly responsible for the roof, eaves aluminum veneer, railings, ceiling and other areas. The roof material uses 0.9mm thick aluminum-magnesium-manganese material YX40-150-300 roof panels. This is the first time we have used a new panel type. The overall effect has the artistic beauty of the Great Wall panel and has received unanimous praise from customers.




